Projekt
Fotogalerie
Region
Liestal
Quartier
Ansichten
Grundrisse
Situation
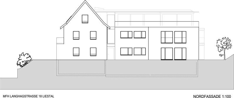
Nordfassade
Ostfassade
Südfassade
Westfassade
Schnitt A-A
Schnitt B-B
Schnitt C-C
Baubeschrieb
Infrastruktur
Termine&Preise
Kontakt
NORDFASSADE